Close
首頁
房屋出售
房屋出租
社區大樓
土地查詢
委託買賣
公司簡介
精英團隊
人才招募
不動產知識
google查詢
仁德農舍
首頁
房屋出售
房屋出租
社區大樓
土地查詢
委託買賣
公司簡介
精英團隊
人才招募
不動產知識
google查詢
首頁
›
房屋出售
›
台南農舍
›
仁德農舍
›
仁德農舍
仁德農舍|86快速道路台糖虎山田厝
售
台糖86虎山-地117坪新建農機具所,售1680萬
列印
售1680萬
案號:
3979
類型:
農舍_倉庫_一樓
總登記坪數:
117.55坪
每坪單價:
14.29萬/坪
地址:
台南市仁德區田厝二街
陳盈秀
(煩請告知聯絡人,您是在House-Info房屋網看到廣告,感恩幫忙)
0928-010-990
市話:
0928010990 (LINE)
公司名稱:
誠昱不動產企業社(住商成大東興店)
公司地址:
台南市永康區小北路30號
我要留言
物件介紹
詳細資料
銷售狀態
:
帶看中
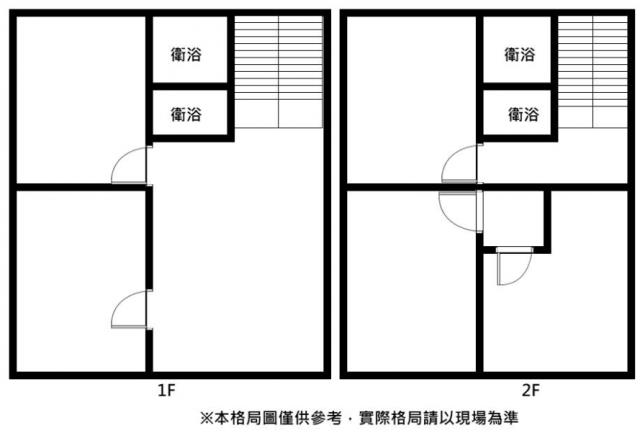
格局
:
5房,1廳,4衛
屋齡
:
1年
車位
:
門前車庫
無障礙環境
:
有
所在樓層
:
共1樓
管委會
:
沒有
中庭
:
沒有
電梯
:
沒有
面前道路
:
9米路
是否凶宅
:
不是
瀏覽人次
:
64人次
周邊環境
鄰近學區
:
文賢國小,虎山國小
坪數說明
建物登記總坪數
:
26.28
土地登記總坪數
:
117.55
特色描述
近台糖虎山
仁德農舍-0
仁德農舍-1
仁德農舍-2
仁德農舍-3
仁德農舍-4
仁德農舍-5
仁德農舍-6
仁德農舍-7
仁德農舍-8
仁德農舍-9
仁德農舍-10
仁德農舍-11
仁德農舍-12
物件留言
請注意,如果您詢問的內容與物件不相符合或是廣告,經過審核,系統將會直接刪除您的發問內容
住宅分類
七股農舍
下營農舍
大內農舍
山上農舍
中西區農舍
仁德農舍
六甲農舍
北門農舍
北區農舍
左鎮農舍
永康農舍
玉井農舍
白河農舍
安平農舍
安定農舍
安南農舍
西港農舍
佳里農舍
官田農舍
東山農舍
東區農舍
南化農舍
南區農舍
後壁農舍
柳營農舍
將軍農舍
麻豆農舍
善化農舍
新化農舍
新市農舍
新營農舍
楠西農舍
學甲農舍
龍崎農舍
歸仁農舍
關廟農舍
鹽水農舍
免責聲明:House-Info房屋網平台系統為租用式開放房屋買賣網站建置平台,僅提供會員查詢-
台南市
,
仁德區
,
農舍
-等房屋資訊參考,並不涉入任何諮詢、交易。 物件(服務)聯絡人公佈的資訊、文字、照片、圖形、產權、廣告內容、或其他資料若有不實或違法情事,或與客戶聯絡交易過程中若衍生民事或刑事等法律問題,皆與House-Info房屋網站無關,所有商標、文章、名稱等版權,皆歸屬原著作者所有!
台南廠房
|
台南市廠房
|
台南廠房出租
|
租台南廠房
|
台南小廠房
|
台南廠房
|
台南廠房出租買賣
資料處理中,請稍後...