Close
首頁
房屋出售
房屋出租
社區大樓
土地查詢
委託買賣
公司簡介
精英團隊
人才招募
不動產知識
google查詢
台南透天
首頁
房屋出售
房屋出租
社區大樓
土地查詢
委託買賣
公司簡介
精英團隊
人才招募
不動產知識
google查詢
首頁
›
房屋出售
›
台南透天
›
東區透天
›
台南透天
台南透天|崇善商圈崇善11街
售
崇善商圈-孝親裝潢透天車庫,售1980萬
列印
售1980萬
案號:
4002
類型:
透天_別墅
總登記坪數:
33.39坪
每坪單價:
59.3萬/坪
地址:
台南市東區崇善11街
陳盈秀
(煩請告知聯絡人,您是在House-Info房屋網看到廣告,感恩幫忙)
0928-010-990
市話:
0928010990 (LINE)
公司名稱:
誠昱不動產企業社(住商成大東興店)
公司地址:
台南市永康區小北路30號
我要留言
物件介紹
詳細資料
銷售狀態
:
帶看中
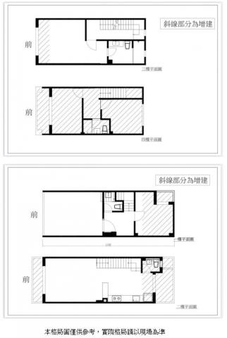
格局
:
4房,2廳,4衛,4陽台,1廚房
屋齡
:
46年
車位
:
室內車庫
無障礙環境
:
沒有
所在樓層
:
共4樓
管委會
:
沒有
中庭
:
沒有
電梯
:
沒有
面前道路
:
8米路
邊間
:
不是
是否凶宅
:
不是
瀏覽人次
:
8人次
周邊環境
鄰近學區
:
德高國小,崇明國中
坪數說明
建物登記總坪數
:
33.39
土地登記總坪數
:
17.84
特色描述
近崇善路-8米路
1.整棟重新整理+增建,實際使用
2.空間大幅提升,格局方正,動線佳
3.一樓孝親房+有天井+二樓延伸露台
4.屋內保有自然光,乾爽不潮溼
5.仁和商圈,生活機能完整,採買便利
6.崇善商圈近學區,外食方便,診所林立,生活便利滿分
台南透天-0
台南透天-1
台南透天-2
台南透天-3
台南透天-4
台南透天-5
台南透天-6
台南透天-7
台南透天-8
台南透天-9
台南透天-10
台南透天-11
台南透天-12
台南透天-13
物件留言
請注意,如果您詢問的內容與物件不相符合或是廣告,經過審核,系統將會直接刪除您的發問內容
相似物件
東區
售1998萬
東區崇善路
類型:透天_別墅_店面
坪數:72.98坪
格局:5房
東區
售4980萬
東區裕英街
類型:透天_別墅
坪數:91.74坪
格局:5房
東區
售1388萬
東區中華東路三段
類型:透天_別墅
坪數:38.46坪
格局:4房
東區
售1380萬
東區東門路三段
類型:透天_別墅
坪數:27.41坪
格局:4房
東區
售1780萬
東區東寧路
類型:透天
坪數:56.32坪
格局:6房
東區
售1128萬
東區仁和路
類型:透天
坪數:14.59坪
格局:4房
住宅分類
東區公寓
東區電梯大樓
東區大樓建案
東區華廈
東區套房
東區透天
東區透天厝
東區透天別墅
東區透天建案
東區農舍
東區別墅
東區一樓
東區工業住宅
東區店面
東區廠房
東區工業廠房
東區廠辦
東區商辦
東區辦公室
東區倉庫
免責聲明:House-Info房屋網平台系統為租用式開放房屋買賣網站建置平台,僅提供會員查詢-
台南市
,
東區
,
透天
-等房屋資訊參考,並不涉入任何諮詢、交易。 物件(服務)聯絡人公佈的資訊、文字、照片、圖形、產權、廣告內容、或其他資料若有不實或違法情事,或與客戶聯絡交易過程中若衍生民事或刑事等法律問題,皆與House-Info房屋網站無關,所有商標、文章、名稱等版權,皆歸屬原著作者所有!
台南房屋
|
台南市房子
|
台南房子
|
買台南房屋
|
台南市房屋
|
台南買房子
資料處理中,請稍後...